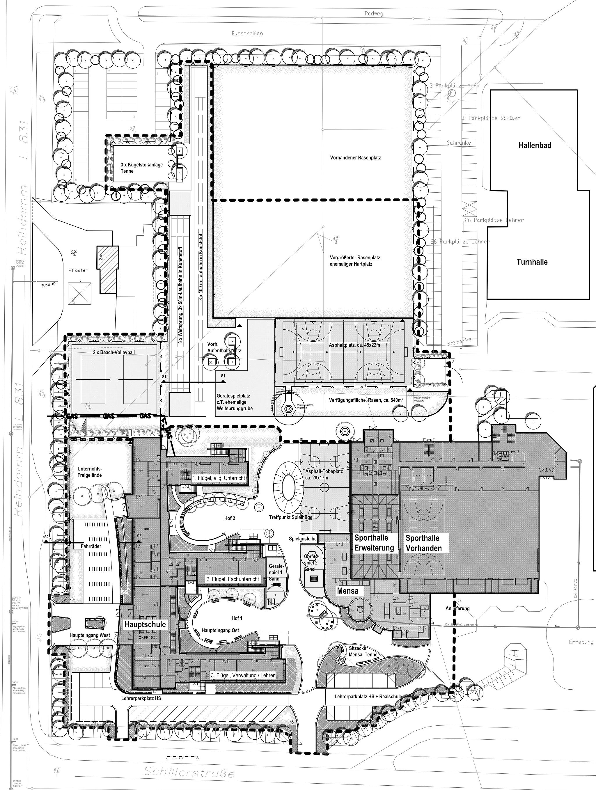
Oberschule - Bad Zwischenahn
| Bauherr | Gemeinde Bad Zwischenahn |
| Ort | Reihdamm - Bad Zwischenahn |
| Leistung | Planung - Ausschreibung - Bauleitung Landschaftsarchitekt Holger Lebèus für pgf-Oldenburg |
| Fläche | Sanierte Sportanlagen ca. 11.000 m² Neue Schulfreianlagen ca. 7.200 m² |
| Baukosten | Freianlagen ca. 700.000 € brutto |
| Fertigstellung | 2007 |
| Neubau Gebäude | jbp Architekten und Ingenieure, Bad Zwischenahn |
Inhalte
- Freundlich-offene Zugangssituation mit großer Fahrradstellplatzanlage
- In vorh. Wallhecke eingepasste Lehrerparkplätze
- Zwei halboffene Innenhöfe mit introvertierten Aufenthaltsmöglichkeiten
- Die verschiedenen Schulkomplexe und Mensa verbindendes, extrovertiertes „Schulhofband"
- Neue Tobe-, Ballspiel- und Kletterbereiche
- Sanierung der kompletten Schulsportanlage
Besonderheiten
- Kleiner Schulgarten unter „sozialer Kontrolle“, direkt am Haupteingang
- Großer Pflasterberg trennt und verbindet Nutzungsbereiche, dort kann man sich treffen, zugucken, überblicken, „Schaulaufen“, Toben und Rennen u.v.m





















